Builders Clearinghouse

$549,900

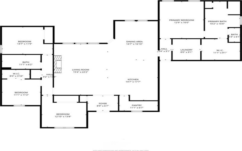
2008 Forest Bridge Drive, Azle, TX 76020

Residential
Last update date 2025-12-15 00:03:15
4 Camas
2 Balneario
2,400sqft
  • Build in 2025
  • Área de lote 1.00 Acre
  • Tipo de Propiedad Residential
  • loc
    MLS # 21107826
  • Días en el mercado 35Días
  • Habitaciones 4
  • Baños completos 2
  • Pies Cuadrados 2,400 Sq Ft
Descripción

Beautiful New Construction on spacious Acre – No HOA! Fully Fenced Backyard! Outside City Limits! Builder offering $20,000 concessions towards closing cost, rate buy down, or additional upgrades if under contract by December 31st, 2025!

Stunning and move-in ready, this gorgeous white brick home sits on a spacious 1-acre lot in the highly desirable Springtown ISD, just outside city limits with no HOA. Designed with both elegance and functionality in mind, this 4-bedroom, 2-bath home offers a wide open floor plan, perfect for everyday living and entertaining.

Step inside to find unique black and gold fixtures and hardware, modern appliances, and spacious walk-in closets throughout. The living area features a beautiful brick fireplace and large windows that bring in abundant natural light. The kitchen and bathrooms boast high-end finishes and designer touches that make this home truly one-of-a-kind.

Outdoors, enjoy a fully fenced backyard with durable pipe-and-no-climb fencing, a large covered back porch, and a professionally upgraded landscape including Bermuda sod, a sprinkler system, and newly planted trees. The extra-wide driveway adds convenience and ample parking space.

Don’t miss your chance to own this thoughtfully built home with luxury touches throughout – all in a peaceful, unrestricted setting!

×

Programe una visita

For further questions, including partnership opportunities, please email
info@questmls.com or contact using our contact form.

Calculadora de hipoteca
Pago mensual: $
This site is registered on wpml.org as a development site. Switch to a production site key to remove this banner.