3
2
1560
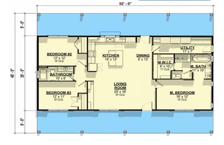
Property Description: Welcome to Hidden Valley Ranches – Your Dream Home Starts Here! ? Discover the exclusive gated community of Hidden Valley Ranches, one of Somervell County’s most breathtaking new developments. Nestled amidst rolling landscapes and abundant wildlife, this is the perfect place to create your private retreat. Imagine building your custom dream home with White Rock Homes & Design on Lot 121, surrounded by expansive Hill Country views. Choose from multiple stunning elevations to design a home that blends seamlessly with the natural beauty of this serene setting. Lot 121 is ready for your vision! Streets are complete, and the price includes a septic system and water well, making this an unbeatable opportunity to start your build with ease. Beyond your future doorstep, enjoy all that Glen Rose and the surrounding areas have to offer, from the stunning wildlife of Fossil Rim to charming local shops, dining, and outdoor adventures. Secure your piece of Hidden Valley Ranches today! Contact us for more details and to schedule your private tour.