3
2
2070
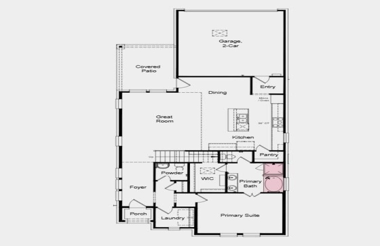
Property Description: New Construction - October Completion! Built by Taylor Morrison, America's Most Trusted Homebuilder. Welcome to the Cavalli at 1605 Barnwood Road in The Ranch at Uptown Celina 40s. The Cavalli offers a stylish blend of comfort and functionality across two well-designed stories. The open-concept layout features a gourmet kitchen that flows into the casual dining area and gathering room, making everyday living and entertaining effortless. Step outside to a covered patio—perfect for relaxing evenings or weekend get-togethers. The main-floor primary suite includes a spa-inspired bath and generous walk-in closet for added privacy and ease. Upstairs, a central loft connects two secondary bedrooms and a full bath, creating a flexible space for guests, hobbies, or movie nights. Located just north of Dallas, The Ranch at Uptown Celina combines small-town charm with city convenience. Enjoy top-rated Celina ISD schools and exceptional amenities, including a pool, dog park, scenic trails, and two air-conditioned community centers. Additional Highlights Include: Slide-in tub at primary bath and gas drop at patio. Photos are for representative purposes only.