4
2
1818
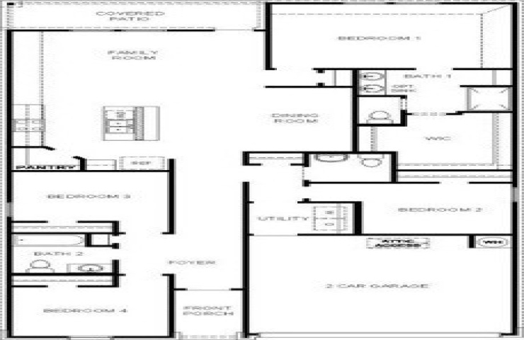
Property Description: The Harris is a single-story, 4-bedroom, 2.5-bathroom home that features approximately 1,822 square feet of living space. Designed with you in mind, the long foyer opens to a spacious dining and living room. Additionally, located off the foyer are the secondary bedrooms and baths. The kitchen features a large breakfast bar and corner pantry. Additional modern finishes include granite countertops in the kitchen and stainless-steel appliances. Bedroom 1 offers privacy with a spacious walk-in closet and an attractive bathroom. You'll enjoy added security in your new D.R. Horton home with our Home is Connected features. With D.R. Horton's simple buying process and ten-year limited warranty, there's no reason to wait! (Prices, plans, dimensions, specifications, features, incentives, and availability are subject to change without notice obligation.)