4
2
2491
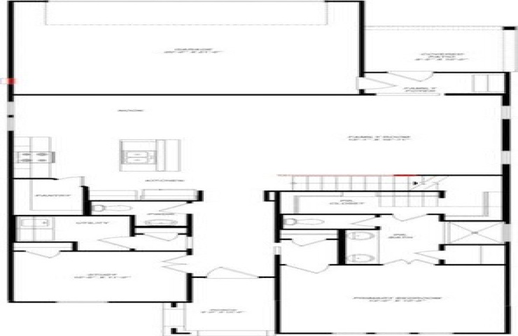
Property Description: MLS# 21039127 - Built by HistoryMaker Homes - Dec 2025 completion! ~ This stunning new construction home in the desirable Treeline subdivision is set to be completed by December 31, 2025. Spanning 2,491 square feet, this traditional single-family residence boasts 4 spacious bedrooms, including 4 primary suites, and 3 bathrooms (2 full, 1 half). The open floorplan features an eat-in kitchen with granite counters, a kitchen island, and a pantry, perfect for entertaining. Enjoy cozy evenings in one of the two living areas or relax under the vaulted ceilings. Additional highlights include smart home technology, walk-in closets, and a covered patio. The home offers a 2-car garage, natural gas heating, and zoned central air conditioning for year-round comfort. Located in the highly-rated Northwest ISD, with convenient access to local schools. Don't miss this exceptional opportunity to own a modern home tailored for today's lifestyle.