3
2
2070
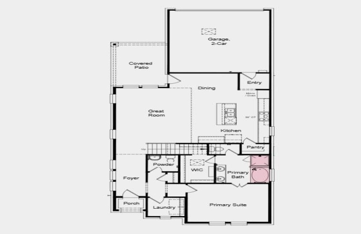
Property Description: New Construction - October Completion! Built by Taylor Morrison, America's Most Trusted Homebuilder. Welcome to the Cavalli at 1017 Rainshower Way in The Ranch at Uptown Celina 40s! This beautifully designed two-story home offers the perfect balance of luxury and practicality. The gourmet kitchen opens to the casual dining area and gathering room, creating a seamless flow for entertaining. Extend your living space outdoors with a covered patio, ideal for relaxing or hosting guests. The main-floor primary suite features a spa-inspired en-suite bath and a spacious walk-in closet. Upstairs, a versatile loft connects two secondary bedrooms and a shared full bath—perfect for family or guests. Located just north of Dallas, The Ranch at Uptown Celina combines small-town charm with city convenience. Enjoy top-rated Celina ISD schools and exceptional amenities, including a pool, dog park, scenic trails, and two air-conditioned community centers. Additional Highlights Include: Slide-in tub at primary bath and gas drop at patio. MLS#21042124