4
3
2222
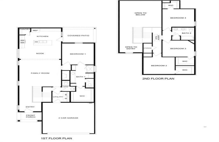
Property Description: Welcome Home! The Lakehurst plan catches your eyes from the start with it's souring ceilings and abundant natural lighting. You will have a comfortable open concept, where your kitchen, living, and dining areas blend into a space perfect for everyday living. The kitchen features cabinets with hidden hinges and crown molding, granite counters, an island, and stainless-steel dishwasher, microwave, and gas range. Has a nice back patio for outdoor living with family and friends. Come fall in love with your new home and enjoy the amenities of the amazing community of Bel Air Village!