3
2
2209
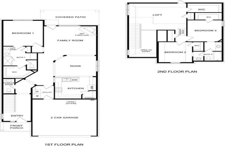
Property Description: Welcome Home! The Amethyst plan is a fan favorite with it's abundant style and natural lighting. You will have a comfortable open concept, where your kitchen, living, and dining areas blend into a space perfect for everyday living. The kitchen features cabinets with hidden hinges and crown molding, hard surface countertops, an island, and stainless-steel dishwasher, microwave, and gas range, to make meal prep easy. Enjoy fun times in the spacious loft. Relax on a nice back patio for outdoor living perfect for family and friends. Come fall in love with your new home and enjoy the amenities of the amazing community of Bel Air Village!