4
3
2680
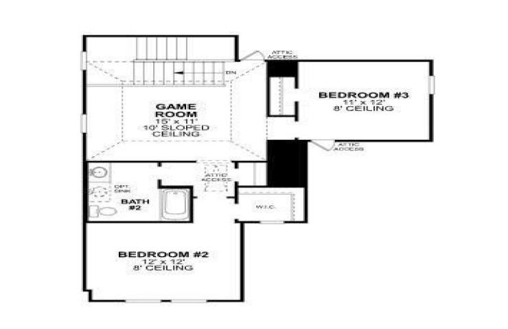
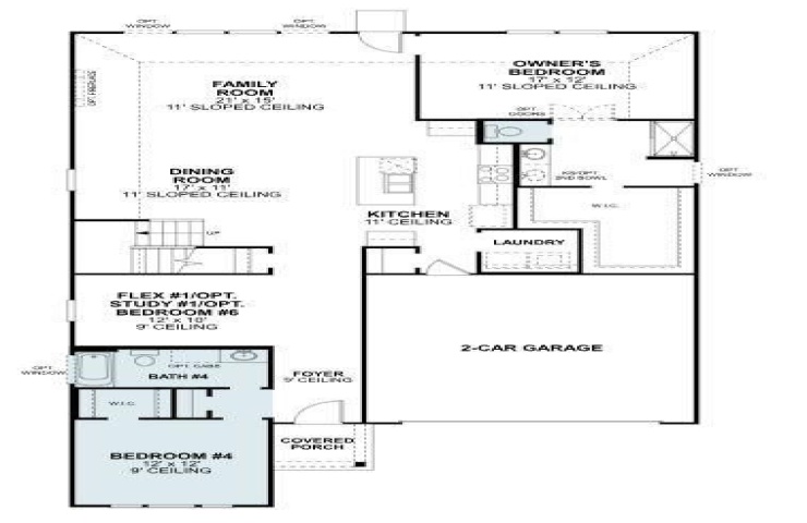
Property Description: Built by M-I Homes. Welcome home to 3308 Majesty Lane in Denton. This new construction 2-story home offers ample living space and features 4 bedrooms, 3 full bathrooms, an open-concept living space, a flex room, a game room, a 2-car garage, and so much more! The open-concept design creates seamless flow between living areas, making this home ideal for both daily routines and hosting guests. Each bedroom offers comfortable accommodations, while the 3 bathrooms provide convenience throughout the home. This home sits in a desirable Denton neighborhood known for its quality design standards and proximity to local parks. The area offers easy access to recreational opportunities and maintains the peaceful atmosphere that makes this location particularly appealing. Built with attention to detail and quality craftsmanship, this new construction home represents an excellent opportunity to own a move-in ready home in Denton. Experience the benefits of new construction with warranties and the peace of mind that comes with being the first owner of this well-designed home. Schedule your visit today!