4
3
2218
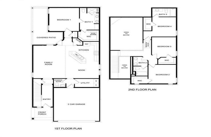
Property Description: New Construction by DR Horton. The Chester Plan- this beautiful 2 story home offers 4 Bedrooms, 3.5 Bathrooms, a 2 Car Garage, and Covered Patio. Beautiful finishes, energy efficient construction, and smart home features included. Come fall in love with your new home and enjoy the amenities of the amazing community of Bel Air Village!