En Venta
$374,950
10701 Daryl Johnson Street
El Paso, Texas 79924
Listing ID 929941
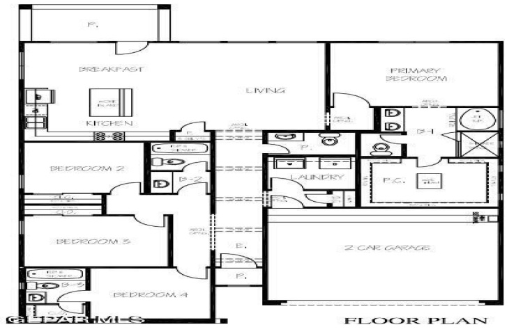
4
3
1913
Property Description:
House is not yet finished, but under construction. Photos are file photos, NOT actual property.
Phone Number:
512-256-9091
Email:
Info@BuildersClearinghouse.com
Ninguna imagen
www.buildersclearinghouse.com