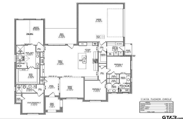
4
3
2480
Property Description: STILL TIME TO CUSTOMIZE! This custom floor plan by Hunt Custom Homes will be move in ready in January 2026! 4 Bedrooms, 3 full bathrooms, a designated study/play room/flex space, oversized covered patio. This is a Half acre homesite in a boutique custom home neighborhood just minutes from South Tyler restaurants, shopping and schools. This plan is light and bright with high ceilings and plenty of windows.