3
2
2000
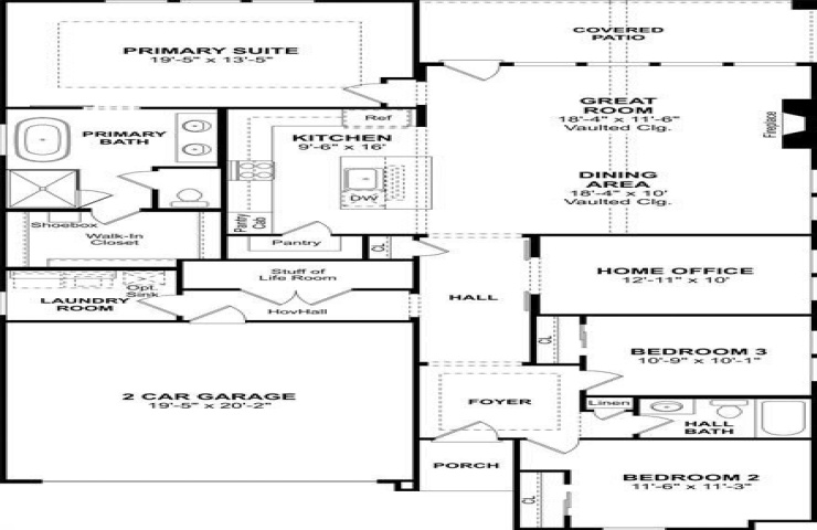
Property Description: This charming 1-story home features 3 bedrooms, 2 baths, a home office, and a 2-car garage. A welcoming foyer with coat closet and HovHall with laundry room keep your home tidy. The impressive great room is filled with natural light. The elegant primary suite includes a private bath with dual sinks and huge walk-in closet. The kitchen features a spacious island, pantry, and charming dining area with access to the covered patio. Residents enjoy future on-site amenities at Heritage Ranch including walking trails, a pool, and a community park. Schedule a tour today!