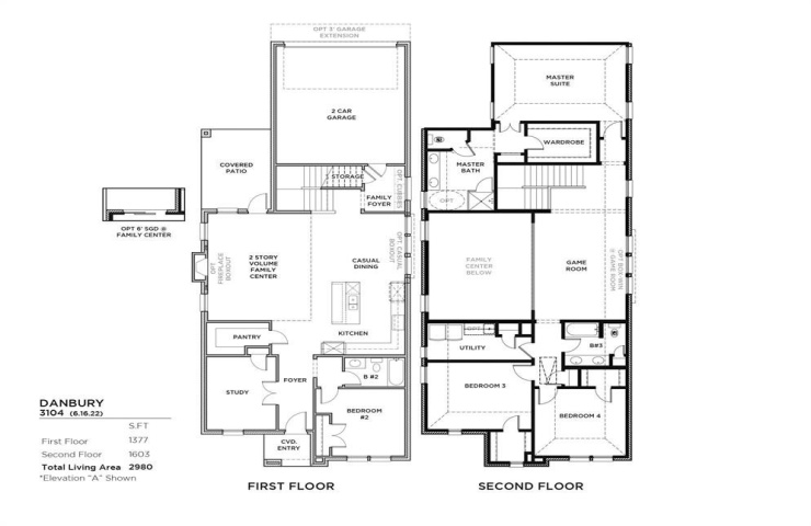
4
3
2930
Property Description: NORTH-Facing Home! This gorgeous open-concept home features a dramatic two-story family room, 4 bedrooms, 3 bathrooms, and a study. The beautiful gourmet kitchen boasts light quartz countertops, 42-inch cabinets with upper glass inserts, upgraded built-in appliances, and a spacious walk-in pantry. The master retreat offers a luxurious bathroom with a separate tub and shower. Additional upgrades include real hardwood flooring, 8’ interior doors on the first floor, a metal railing on the stairs and overlooking the family room, elegant pendant lights over the kitchen island, and much more.