0
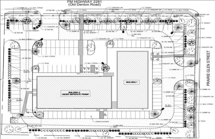
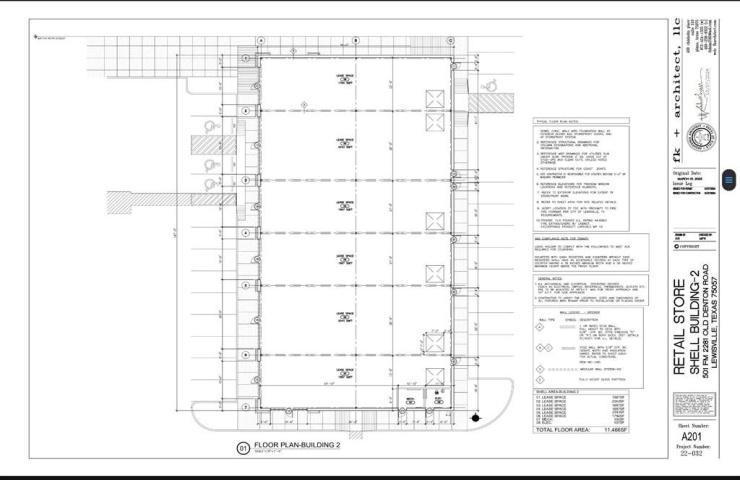
Property Description: Prime Retail Shell Space – 501 Old Denton Road, Lewisville (Building 2) Excellent opportunity to lease prime retail shell space at the highly visible corner of Parker Road and Old Denton Road in Lewisville. Suite 203 offers approximately 1,697 USF and is one of six available suites ranging from approximately 1,580 to 2,240 RSF, allowing flexibility for a variety of retail and service-oriented uses. End-cap spaces are ideal for a restaurant, café, or other food and beverage concepts. The property features full utility infrastructure, including electricity, water, sewer, drainage, and grease trap capacity. Lease Rates starting at $30.00 RSF + $10.00 RSF NNN TI Allowance -Negotiable based on lease terms. Strategically positioned at a signalized, high-traffic intersection and surrounded by established residential communities and thriving retail corridors, this site offers strong traffic counts, excellent visibility, and premium exposure. A rare opportunity to secure flexible retail space in one of North Dallas’ most dynamic and rapidly growing submarkets.