4
2
2421
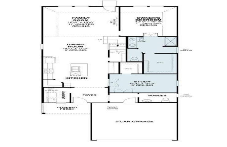
Property Description: Discover this beautiful new construction home at 449 Forsyth Drive in Princeton, Texas. The thoughtfully designed layout offers an inviting open-concept living area that seamlessly connects the kitchen, dining, and family spaces—perfect for both daily living and entertaining. Key features include 4 bedrooms with the owner's suite on the main level, 2.5 bathrooms, a front-load 2-car garage, energy-efficient systems, and modern finishes throughout The bright, open layout provides connected gathering spaces along with private retreats. The main-level owner's suite offers comfort and convenience, while the upstairs bedrooms give flexibility for family, guests, or home office needs. Located in a welcoming Princeton neighborhood, this home offers easy access to parks, green spaces, and local amenities in a peaceful community setting. Contact our team today to schedule your private tour!