4
3
2142
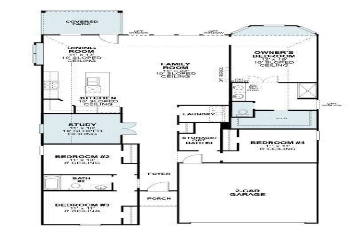
Property Description: Built by M-I Homes. Discover this stunning new construction home at 14231 Bacton Road in Pilot Point, built by M-I Homes. This thoughtfully designed 4-bedroom, 2-bathroom home offers a spacious, comfortable and open-concept heart of the home, and upgraded finishes throughout. Key Features: Private Study Granite kitchen countertops Stainless steel appliances Open-concept living space Covered patio Bay window in the owner's bedroom The home's open-concept design creates a seamless flow between living areas, making it ideal for both relaxation and hosting guests. Upgraded, wood-look tile flooring guides you throughout the main living spaces. The owner's bedroom provides convenient single-level living, while the additional bedrooms offer flexibility for family, guests, or home office needs. The owner's bedroom is spacious and beaming with natural light thanks to the extended bay window. Located in a desirable Pilot Point neighborhood, this home combines quality construction with thoughtful design elements. The floorplan maximizes space efficiency while maintaining comfort and functionality throughout. M-I Homes has crafted this residence with attention to detail, featuring quality materials and finishes that reflect their commitment to excellence in home construction. The 4-bedroom layout accommodates various lifestyle needs, whether you're growing your family or seeking additional space for work and hobbies. Schedule your visit to learn more about 14231 Bacton Road!