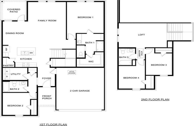
Property Description: Situated off CR 546, just across from Lavon Lake, this 2,208 sq ft home boasts 4 bedrooms and 3 bathrooms, offering plenty of space for families and guests. Enjoy contemporary living with a smart home system, stainless steel dishwasher, stove, and built-in microwave-all designed for convenience and style. Don't wait- schedule your tour today!