5
4
3801
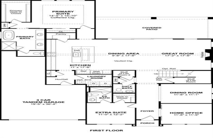
Property Description: A private extra suite with its own bath brings the flexibility today’s households crave — perfect for guests, long-term stays, or anyone who appreciates a little personal space. Sliding barn doors reveal a charming home office that balances character and function, giving you a stylish place to tackle the day. The main living area opens up in a big way, with the great room, dining space, and kitchen gathered beneath a soaring vaulted ceiling. A cozy fireplace anchors the room and instantly makes it feel like home. Throw open the impressive 15-foot multi-slide doors and the covered patio becomes a natural extension of your living space — ideal for entertaining, relaxing, or simply enjoying the view. In the kitchen, a striking Calacatta Laza quartz island steals the spotlight, offering beauty and room to gather. When it’s time to unwind, the spa-inspired primary bath delivers with a freestanding soaking tub and dual vanities built to handle real life with ease. Walk it in person — the openness, light, and finishes are even better up close.