3
2
1908
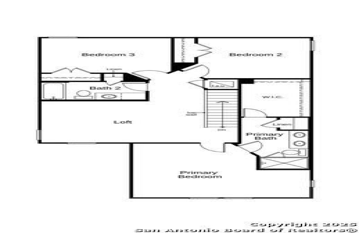
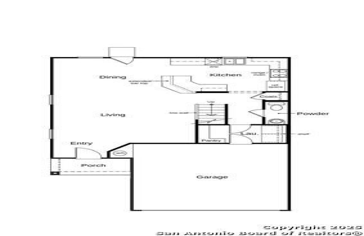
Property Description: Step into comfort with 9-ft. first-floor ceilings that create a spacious, airy feel throughout. The kitchen is a stylish standout with Whirlpool stainless steel appliances, Woodmont Cody 42-in. upper cabinets, an extended breakfast bar, and elegant granite countertops in Barcelona. The primary bath offers upgraded cabinets and a 42-in. shower with a Daltile tile surround for a spa-like retreat. Decorative touches include a Carrara-style entry door, Kwikset Polo knob interior hardware, and Rekindle ceramic tile flooring in the bathrooms, kitchen, and living room. A wireless security system adds peace of mind, while outdoors you'll enjoy a fully sodded yard with an automatic sprinkler system.