4
2
1763
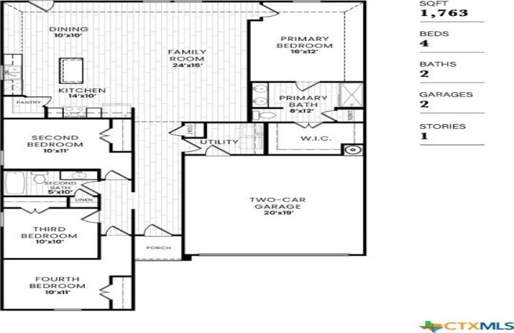
Property Description: MLS 593223- Built by Dunhill Homes - Ready Now! ~ Discover modern living in this beautifully constructed single-family home, situated in the desirable Atascosa Estates subdivision. This spacious 1,763 square foot residence features 4 generously sized bedrooms, all designed as primary suites, making it an ideal choice for families or those seeking extra space for guests or a home office. The layout includes 2 full bathrooms, ensuring convenience and privacy for all occupants. The heart of the home features a well-appointed dining area that flows seamlessly into the living space, perfect for gatherings and entertaining. The interior boasts a blend of plush carpeting and stylish vinyl flooring, providing both comfort and durability. Designed with energy efficiency in mind, the home is equipped with central heating and cooling systems, ensuring year-round comfort. The double-pane windows not only enhance energy efficiency but also offer a serene view of the private backyard, a perfect retreat for relaxation or outdoor activities. Security lighting adds an extra layer of peace of mind for homeowners. Located within the highly regarded Temple Independent School District, families will appreciate the proximity to Western Hills Elementary, Bonham Middle School, and Temple High School, all offering quality education options. The exterior features a durable shingle-composition roof and a slab foundation, providing stability and a low-maintenance lifestyle. This home is a rare find in a sought-after area, combining modern amenities with thoughtful design. Don’t miss the opportunity to make this exceptional property your own!.