0
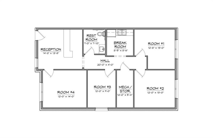
Property Description: Each newly built office condos will be built for professionals will include Reception area, Multiple office, break area, restroom and covered front entry with approximately 1250 under roof. 5 Parking spaces per unit Located in Greenville .5 miles from I30. Easy access to TH Hwy 34, Roy Warren Parkway, FM1570 and more. We have already started construction and have poured the slabs Sept 19-Sept 30th. Units will be available by January 2026. Reserve your unit now before they are gone. 20 Units , but only 18 left to pick from now. $300mth assoc fees, $3600 Capital Assessment due at closing. 4996sq ft whole building is also an option.