4
2
2098
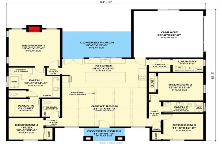
Property Description: Beautiful New Construction Home on 1.25 Unrestricted Acres – Still Time to Choose Your Finishes! Welcome to your dream home in the peaceful countryside just minutes from College Station! This stunning contemporary ranch-style home offers 4 spacious bedrooms, 2.5 bathrooms, a versatile flex room & a total of 2,098 sqft of thoughtfully designed heated living space. Set on 1.25 acres of unrestricted land, this property provides the perfect balance of serene country living with the convenience of nearby city amenities. The home features a covered front porch that invites you inside. You’ll enter into a vaulted great room that feels both open & cozy. The private primary suite offers a beautiful fireplace and a spacious walk-in closet. A flex room sits to the left of the entry and can be used as a home office or a fourth bedroom. Two additional bedrooms on the opposite side of the home share a hall bath, creating a practical and comfortable layout. The 1.25-acre lot offers unrestricted freedom—bring your animals, plant a garden, or build the shop or barn you’ve always wanted. The mix of mature trees and open pasture creates a scenic setting with endless possibilities. Whether you're planning future improvements, 4-H projects, or simply want more space, this is a rare opportunity to create your ideal country lifestyle. Total of 3.80 acres available. Home is proposed. Pictures of a similar floor plan. Final finishes could change price.