4
4
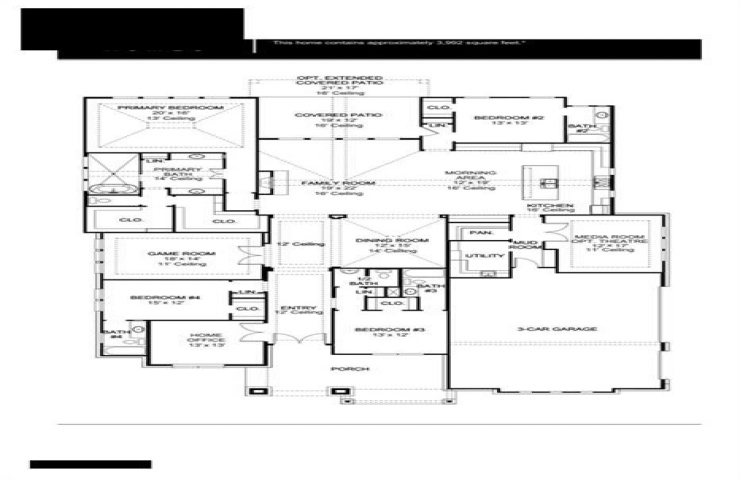
3992
Property Description: Featured on a one-acre homesite. The welcoming front porch opens into the entryway of the home. French doors lead into the home office. Secondary bedrooms with walk-in closets and full bathrooms embrace the main hallway. The game room boasts French doors and three large windows. Adjacent to the game room is the formal dining room. As you enter the family room you are greeted by a fireplace and a sliding glass door. The morning area connects the space to the inviting kitchen which boasts an island with built-in seating, ample counter space, and a large walk-in pantry. A guest suite is at the rear of the home and near the entrance to the extended backyard covered patio. A secluded primary bedroom offers a retreat and ample natural light from its wall of windows. Double doors lead into the bathroom which offers dual vanities, a garden tub, oversized glass shower, and two walk-in closets. The home features a theatre room which is off the kitchen and can be closed off with its French doors. The utility room and mud room are located off of the four-car split garage.