4
2
2106
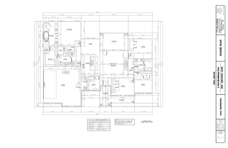
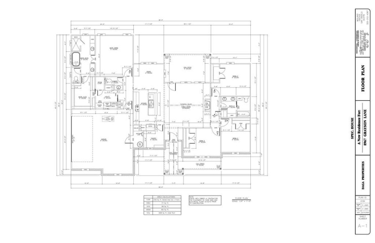
Property Description: Brand New Construction in Stonewall Range – Wall ISD!! Be one of the first homeowners on Grayson Lane in the highly sought-after Stonewall Range subdivision, located within the top-rated Wall Independent School District. This brand-new build offers 4 spacious bedrooms and 2 and a half bathrooms, thoughtfully designed with a split-bedroom layout for added privacy. Enjoy an open-concept living, dining, and kitchen area—perfect for entertaining or everyday comfort. Step outside to a large covered patio, ideal for outdoor gatherings or relaxing evenings. Don't miss your chance to own a new home in one of the most desirable areas of Wall ISD!