3
2
1699
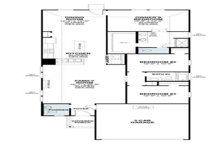
Property Description: This new construction home at 2528 Breakaway Drive, Mesquite offers thoughtfully designed living space. Built by M-I Homes, this single-story home features an open-concept living area that seamlessly connects the main gathering spaces. This home features the following elements: 3 bedrooms with owner's bedroom conveniently located on the main level 2 full bathrooms and a powder room Open-concept floorplan ideal for entertaining 2-car garage The home's design emphasizes functionality and comfort throughout. The owner's bedroom is positioned on the main floor for easy accessibility, while the open-concept layout creates a flowing space perfect for daily living and hosting guests. Each room has been carefully planned to maximize the home's square footage. Located in a desirable Mesquite neighborhood, this home provides easy access to local parks and recreational opportunities. The area offers a blend of suburban tranquility with convenient access to shopping, dining, and entertainment options. Families will appreciate the proximity to quality schools and community resources. The thoughtful design elements throughout this M-I Homes construction showcase attention to detail and quality materials. From the well-appointed bedrooms to the functional bathroom layouts, every aspect of this home has been designed with modern living in mind. This new construction home presents an excellent opportunity for buyers seeking a move-in ready option in Mesquite. Contact us today to learn more and schedule visit today!