3
2
1695
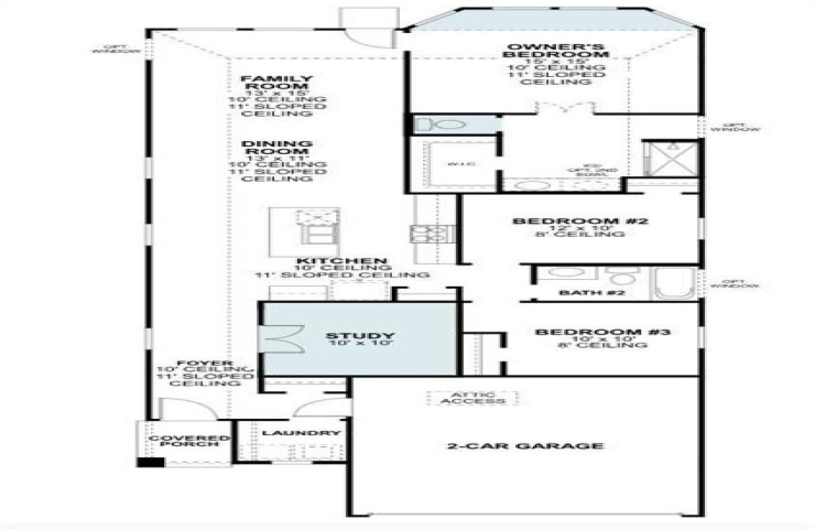
Property Description: Built by MI Homes. Discover this stunning new construction home at 1844 Osage Trail in Mesquite, TX. This thoughtfully designed single-story home of comfortable living space with an open-concept layout perfect for daily living and entertaining. Key Features: • 3 bedrooms including owner's bedroom in its own private corner • 2 full bathrooms with quality fixtures and finishes • Open-concept living area connecting kitchen, dining, and family room • Single-story design for convenient, accessible living The home's floorplan maximizes functionality while maintaining an inviting atmosphere. The owner's bedroom in its own private corner provides a peaceful retreat, while the additional bedrooms offer flexibility for family, guests, or home office use. The open-concept design creates seamless flow between living areas, enhancing both comfort and connectivity. Located in a desirable Mesquite neighborhood, this home offers easy access to local parks, recreational facilities, quality schools, and community amenities. High-quality construction ensures lasting value and comfort for years to come. This new construction home represents an excellent opportunity to own a move-in ready residence with thoughtful design and modern functionality in Mesquite, TX. Schedule your visit today!