4
3
2986
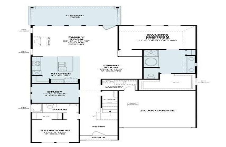
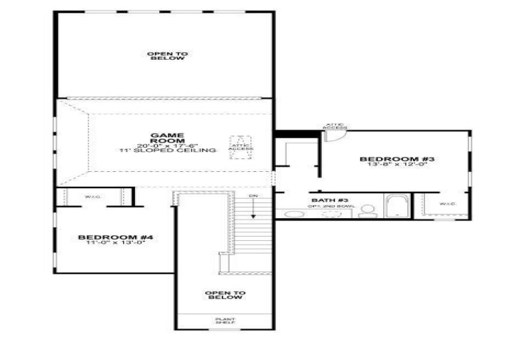
Property Description: Built by M-I Homes. Experience this beautifully designed 2-story home at 5033 Ressina Drive. This home combines modern living with thoughtful design, offering open and inviting spaces for both everyday life and entertaining. Featuring our all new Presidion model home plan, this layout will impress with a spacious, open-concept layout, soaring, tall ceilings, and an abundance of natural light that carries you throughout. Key Features: • 4 bedrooms including a first-floor owner’s bedroom • 3 full bathrooms • Open-concept family room, kitchen, and dining areas • Spacious upstairs game room • 2-car front-load garage The main floor features a bright and airy family room that flows effortlessly into the kitchen and dining area. The owner’s bedroom, tucked at the back of the home, includes a generous en-suite with dual vanities, a walk-in shower and soaking tub with elegant tile selections, a walk-in closet, and a private water closet. The dual sinks create the perfect spot for daily routines and an extra window provides excellent natural light. A private, first-floor study offers the ideal home office, and you'll appreciate the benefit of two bedrooms on the first floor, perfect for family or guests. Additional bedrooms upstairs provide comfortable accommodations, while the upstairs game room offers flexible space for entertaining, hobbies, or relaxation. Neighborhood & Location Benefits: • Located in Sutton Fields with access to incredible community amenities • Zoned to top-rated Prosper ISD • Close to local parks and outdoor recreation • Convenient access to the Dallas–Fort Worth Metroplex This 2-story home blends functional layouts, thoughtful design, and a desirable location, making it an ideal choice for families seeking move-in-ready comfort and style. Schedule your visit today!