4
3
2508
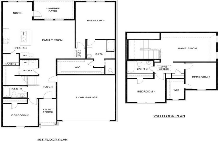
Property Description: New! Amazing two story! Four bedrooms, three full baths, with nice upstairs loft. Home includes, island kitchen, granite counters throughout, LED lighting, full sprinkler system, professionally engineered post tension foundation, and much more! Discover the vibrant community of Saddlebrook Estates in Waxahachie. Situated approximately 30 miles south of downtown Dallas, this community offers residents a harmonious blend of suburban tranquility and urban convenience. Saddlebrook Estates boasts an array of amenities designed for family enjoyment and active lifestyles. Residents can unwind at the resort-style swimming pool, let children explore the playground and splash pad, or enjoy leisurely walks along the community's hiking and biking trails. The expansive green spaces provide ideal spots for picnics and outdoor activities, fostering a strong sense of community among neighbors. Schedule a tour today!