5
4
4061
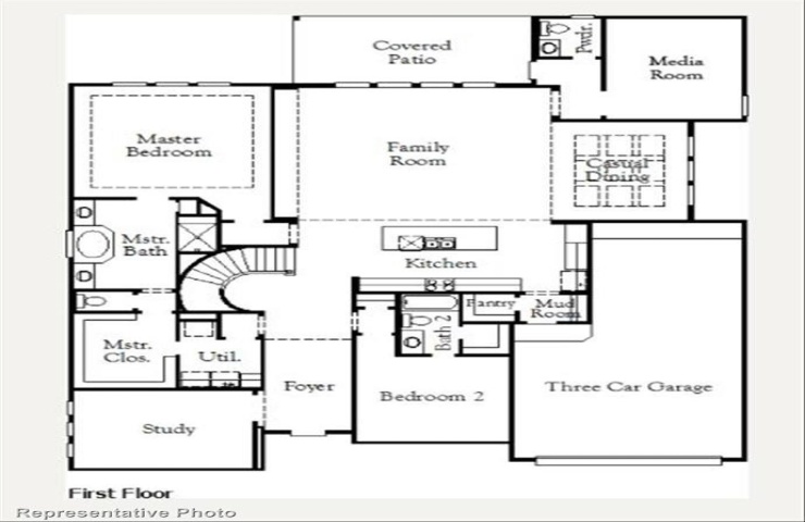
Property Description: MLS# 21070094 - Built by Coventry Homes - Mar 28 2026 completion! ~ The Hamlin floor plan at Mustang Lakes offers the perfect blend of luxury and functionality with 4 spacious bedrooms, a game room, and a downstairs media room for ultimate relaxation and entertainment. Boasting soaring ceilings and an open-concept design, this home features a stunning curved staircase and large windows that flood the space with natural light. Situated on a corner homesite with an oversized lot, you'll enjoy plenty of privacy and breathtaking views from the front porch of the tranquil open greenspace. With a focus on comfort and style, the Hamlin is the ideal home for modern living. Schedule your tour today and see why this home is the perfect place to create your next chapter!