4
2
1958
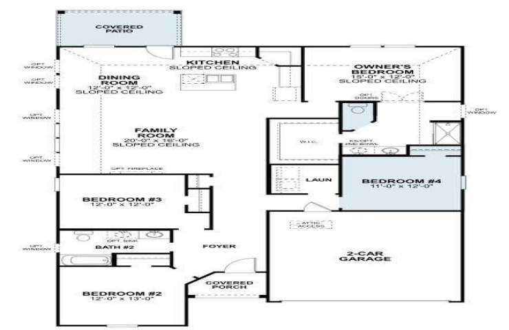
Property Description: Discover this beautiful new construction home at 3908 Birch Lane in Argyle, Texas. This thoughtfully designed layout offers an open-concept living space, perfect for daily life and entertaining. Key Features: • 4 bedrooms including a spacious owner's suite located in a private corner • 2 full bathrooms with modern fixtures • Open-concept floorplan that maximizes flow and natural light • Quality finishes and move-in ready convenience The open layout creates inviting gathering spaces while still providing private retreats. The owner's suite offers comfort and seclusion, and the remaining bedrooms adapt easily to family, guests, or a home office. Argyle's welcoming neighborhood provides easy access to parks, trails, and local amenities, making this an excellent choice for active family life. Schedule a visit today!