4
3
2768
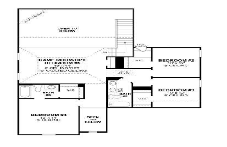
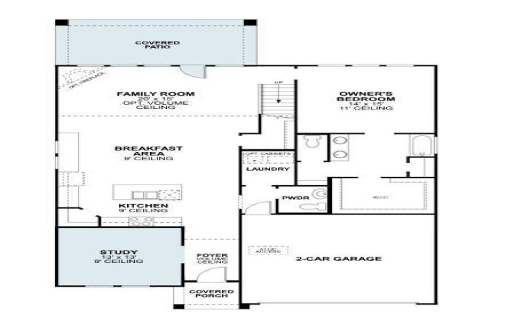
Property Description: Discover this beautiful new construction home at 3900 Yarrow Drive in Argyle, Texas. Offering a thoughtfully designed space to blend style, comfort, and functionality. Key Features: • 4 bedrooms with the owner's suite conveniently located on the main level • 3 full bathrooms and 1 half bathroom • Two-story design with open-concept floorplan for seamless flow • Front-loading two-car garage • Quality finishes and move-in ready convenience The open-concept design connects the kitchen, dining, and family areas, creating a warm and inviting atmosphere for everyday living or entertaining. The main-level owner's suite provides comfort and privacy, while the upstairs bedrooms offer flexibility for guests, family, or a home office. Situated in a welcoming Argyle neighborhood, this home offers easy access to local parks and outdoor recreation while maintaining a peaceful suburban setting. Schedule a visit today!