3
2
1434
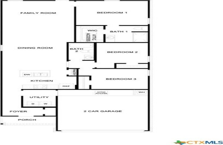
Property Description: MOVE IN READY! NAVARRO ISD. Step inside the Caprock at Swenson Heights in Seguin, Texas. This one-story new home offers 3 bedrooms, 2 bathrooms and a 2-car garage across 1,434 square feet of living space Our homes in Swenson Heights feature our modern farmhouse exteriors. From the front porch, step inside the home and cross through the foyer and hallway. The utility room is off the hall and connects to the garage, making it a perfect mud room. The heart of the home is the open concept living space. The kitchen, dining and family room flow seamlessly into the other, making this space perfect for creating lasting memories. The kitchen features an island with a stainless-steel sink, quartz countertops, 42" upper 'picture frame' cabinets, a pantry closet, and stainless-steel appliances. The primary bedroom is located at the back of the home. Unwind at the end of your day in this private ensuite. The attached bathroom includes a walk-in shower, cultured marble vanity with trench sink and a walk-in closet. The secondary bedrooms and bathroom are located off the kitchen. The bedrooms include carpet and closets with wood shelving. The secondary bathroom has a shower/tub combination and a cultured marble vanity with trench sink. This home features our America's Smart Home base package, which includes the Video Front Doorbell, Front Door Deadbolt Lock, Home Hub, Thermostat, and Deako(R) Smart Switches.