4
4
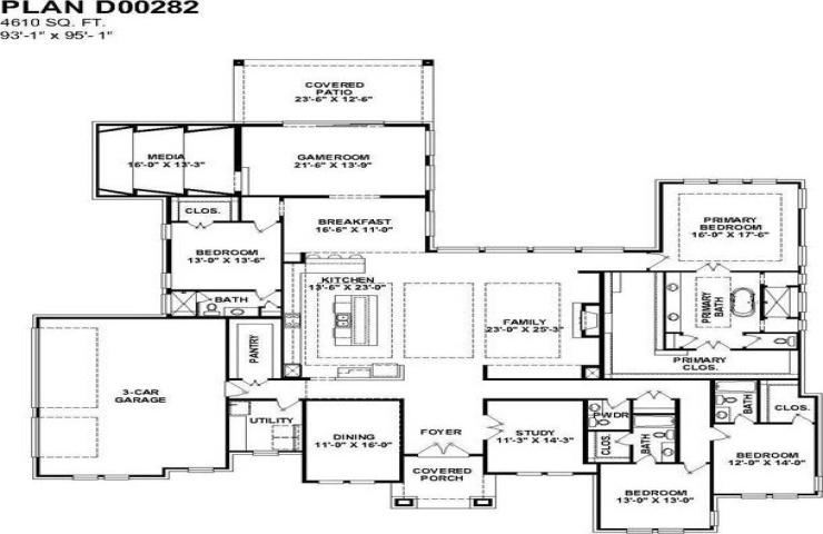
4610
Property Description: Single-Story Custom Home in Harper Estates – 4,610 Sq Ft of Luxury in Celina, TX Located in the exclusive Harper Estates community in Celina, Texas, this beautifully designed single-story custom home offers 4,610 sq ft of refined living, thoughtful design, and elevated comfort—all on one expansive level. Featuring 4 spacious bedrooms and 4.5 baths, the home includes a dedicated study, elegant dining room, cozy breakfast room, and a generous family room with a fireplace that anchors the heart of the home. Whether entertaining or unwinding, enjoy multiple lifestyle spaces like the media room, game room, and a covered patio that invites effortless indoor-outdoor living. The primary suite is a private retreat, complete with a large walk-in closet and a spa-inspired bath. A 3-car garage, open-concept flow, and designer finishes throughout make this home as functional as it is luxurious. Set in a peaceful, upscale neighborhood with quick access to Celina’s growing dining, retail, and community scene, this home is a rare opportunity to enjoy custom quality and timeless style—all on a single, stunning level.