5
4
3803
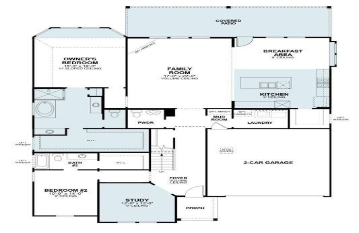
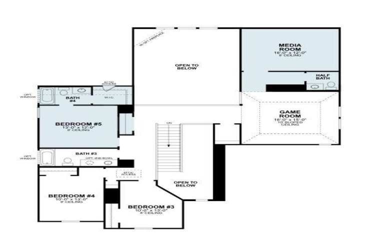
Property Description: Built by M-I Homes. Welcome to 3619 Water Lily Way—a spacious and elegant new construction home located in the sought-after and amenity-rich Lilyana community. This 2-story Quick Move-In home is situated on a spacious and stately corner homesite, bosting an eye-catching first impression, and offering 5 bedrooms, 4 full bathrooms, 2 half bathrooms, and a 3-car garage. As you step through the covered front porch, you’re greeted by a bright foyer flanked by a private study. Just beyond, Bedroom 2 and a full bathroom provide a comfortable guest suite or private space for multigenerational living. The main living area opens up to a stunning family room with soaring volume ceilings and natural light pouring in from the rear-facing windows looking out to your extended covered patio and landscaped backyard. At the heart of the home, the kitchen and breakfast area are both functional and inviting. The kitchen features a large island, ample counter space, and a seamless connection to the breakfast nook. A mud room and laundry area sit just off the garage entrance, creating a practical flow for everyday routines. The first-floor owner’s suite is tucked away at the back of the home, offering privacy and luxury. It features an 11’ sloped ceiling, a spa-like en-suite bathroom with dual vanities, a soaking tub, a separate walk-in shower, and an oversized walk-in closet. This tranquil space provides a true retreat at the end of each day. Additional bedrooms and more await upstairs, making this home perfect for families who need both shared spaces and personal privacy. Plus a media room creates a great space to gather and entertain for game nights or movie marathons. With its thoughtful layout, elevated finishes, and access to top-tier Celina ISD schools, 3619 Water Lily Way delivers a lifestyle of comfort and convenience in a vibrant community setting. Schedule your visit today!