5
4
3411
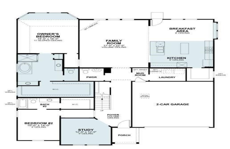
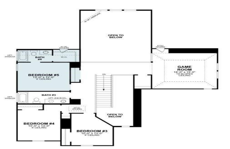
Property Description: Built by M-I Homes. This impressive new construction home at 4034 Yellow Bells Way offers a spacious, open-concept layout, blending style, comfort, and functionality. Key features include 5 bedrooms (including a luxurious first-floor owner's suite), 4 full bathrooms and a convenient half bath, and an open-concept layout ideal for entertaining and everyday living. The main-floor owner's suite offers privacy and accessibility, while the spacious second level provides room for bedrooms, a game room, or other flexible living areas. The private owner's suite will be a highlight, complete with an extended bay window drawing in the soft glow of natural light while also maximizing your square footage. The en-suite deluxe bathroom layout features separate vanities, a soaking tub, a separate walk-in shower, and a spacious walk-in closet for all of your storage needs. Large windows bring in abundant natural light, enhancing the home's bright and inviting atmosphere. The gourmet kitchen features an abundance of counterspace and cabinetry--every home chef's dream. A large entertaining island, stainless steel appliances, and a stylish tile backsplash further enhance the space. Located in a peaceful Celina neighborhood, residents enjoy easy access to parks, trails, and community green spaces. The home's open-concept design ensures seamless flow between living, dining, and kitchen areas, making it perfect for both casual gatherings and special occasions. With its thoughtful floorplan, quality construction, and desirable location, this home offers an exceptional opportunity to enjoy the benefits of new construction living in Celina. Schedule your visit today!