4
4
4206
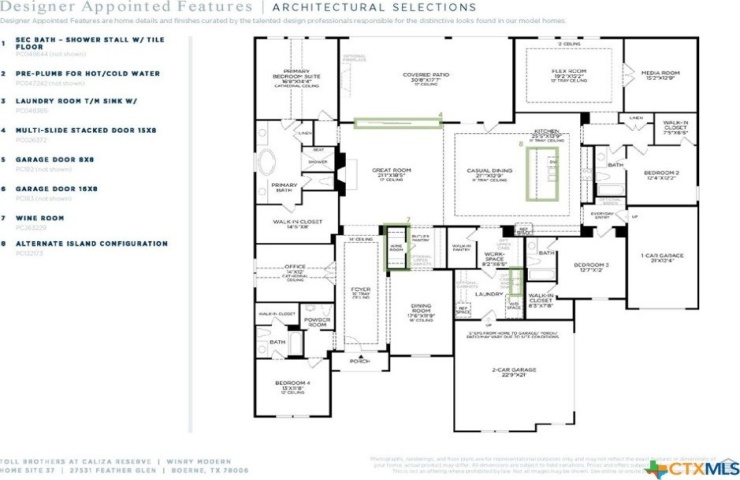
Property Description: MLS 594196 - Built by Toll Brothers, Inc. - Mar 2026 completion! ~ Experience effortless elegance in this stunning single-level home, where every detail is designed for comfort and style. At the heart of the home lies a chef s dream kitchen, beautifully appointed with sleek stone countertops, premium stainless steel appliances, and a professional-grade gas cooktop ideal for both gourmet creations and casual family meals. The expansive open-concept great room offers a seamless flow to the dining area, creating an inviting atmosphere that's tailor-made for entertaining. Soaring ceilings and wide, uninterrupted sightlines lead your eye to the breathtaking outdoor living space, visible through multi-panel stacking doors that blur the line between indoors and out. Whether you're working from home or in need of a creative retreat, the generous flex room provides the versatility to suit your lifestyle be it a home office, art studio, or playroom. Step outside and unwind in the luxury outdoor living area, perfect for al fresco dining, weekend gatherings, or quiet evenings under the stars. Disclaimer: Photos are images only and should not be relied upon to confirm applicable features.