5
4
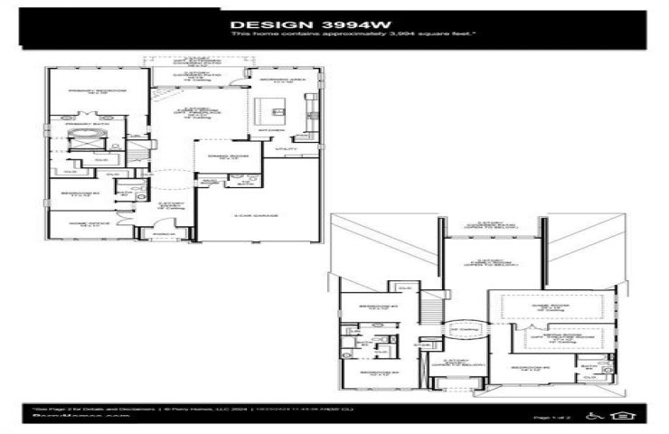
3994
Property Description: Front porch opens into a grand entryway with a 19-foot ceiling. French doors lead into the private home office that overlooks the front yard. A secluded guest suite with full bathroom is off the main hallway. The formal dining room is located right off the main living areas. The two-story family room boasts a wood mantel fireplace and wall of windows. The kitchen features an island with built-in seating, a double wall oven, 5-burner gas cooktop and a walk-in pantry. The utility room is just off the kitchen for added convenience. The morning area is embraced by a corner of windows and offers access to the extended two-story covered patio. The primary bedroom offers ample natural light from its wall of windows. Double doors lead into the primary bathroom which boasts dual vanities, a freestanding tub, glass enclosed shower, and two walk-in closets. Upstairs you are greeted by a large game room with connecting media room both with a tray ceiling. Secondary bedrooms all with walk-in closets, a Hollywood bathroom, and additional full bathroom complete the second floor. Mud room is off the three-car garage.