4
2
2086
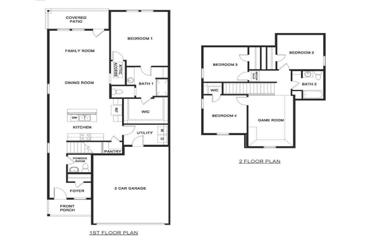
Property Description: New Construction by DR Horton. This beautiful 2 story home offers 4 Bedrooms, 2.5 Bathrooms, game room, 2 Car Garage, and Covered Patio. Kitchen includes island and spacious corner pantry. Energy efficient, and smart home features included. Call today to schedule an appointment.