4
3
3499
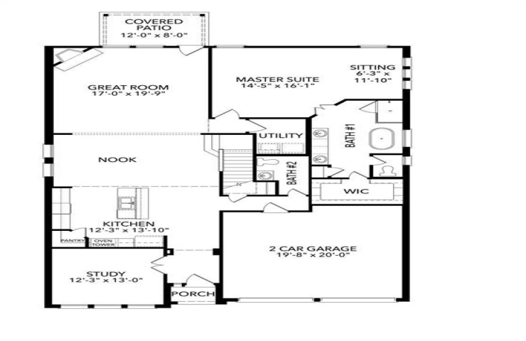
Property Description: MLS# 21077162 - Built by Sandlin Homes - Ready Now! ~ This beautifully designed Silverstone plan offers four spacious bedrooms and 3.5 baths, blending comfort with a sophisticated design. Standout structural features include a 5’ garage extension, a generous junior suite, a versatile media room, a private study, and a convenient Jack and Jill bathroom. The owner’s suite is a true retreat, complete with an added sitting area and larger primary bathroom for ultimate relaxation. Inside, elevated finishes set this home apart. Enjoy 3 cm countertops, a soothing natural, grey-toned palette, and a striking mix of stained and painted cabinetry. The primary bathroom showcases black zellige tile in both the shower and tub wainscot, adding depth and drama. Decorative shaped tiles and upgraded tilework continue throughout the secondary bathrooms, bringing thoughtful style to every room. Designed for modern living with timeless appeal, this home is a rare opportunity to enjoy space, style, and functionality – all in one remarkable home.