4
3
2429
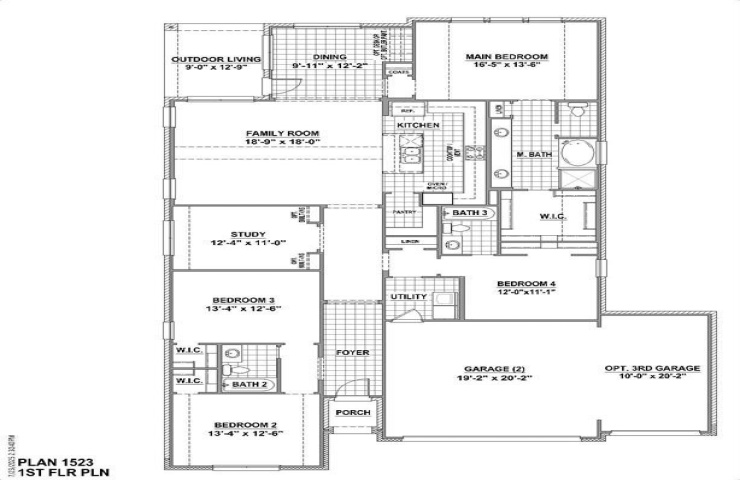
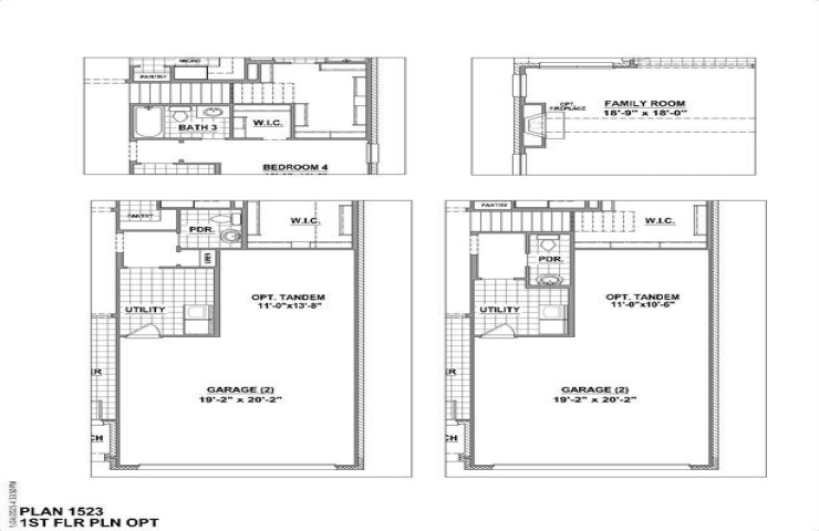
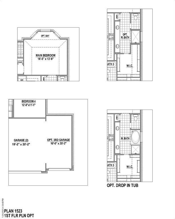
Property Description: Stunning single story American Legend home with 4 bedrooms, 3 full baths, study, large outdoor living area and a 3-car garage, all situated on a oversized lot. Upon entering, you'll notice two sizable bedrooms with a shared bath on one side and a secluded guest bedroom and private en suite bath on the other. Continuing down the expansive foyer, you'll find the home office with double French doors, which could also be used as a hobby or playroom. The open concept design really shines as you enter main living space with 14-foot ceilings and several floor to ceiling windows bathing the space in natural light. The family room flows seamlessly into the kitchen, which features numerous cabinets and a large center island with seating. The adjacent dining area leads to the oversized outdoor living area, perfect for entertaining. Tucked away in the back corner of the home is the main bedroom with en suite bath features extensive countertops, dual vanities, a soaking tub, a separate shower, a convenient linen closet and an expansive walk-in closet. The three-car garage measures 29 feet wide by 20 feet deep and is perfect for multiple cars, a golf cart, storage or a workshop. This is a must see home!!! Available in December 2025!