3
2
1973
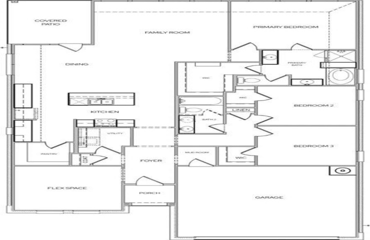
Property Description: Freeman Farm by Lillian Homes brings new construction homes in Kaufman, TX within reach. The Alamo offers 2,002 square feet of smart, stylish living—ideal for first-time buyers or those looking to downsize without sacrificing comfort. This well-designed single-story home features 3 bedrooms and 2 baths, including a primary suite with a walk-in shower and relaxing garden tub. The open-concept floor plan highlights a spacious kitchen with a versatile island, perfect for dining or entertaining. Outdoor living is made easy with a covered patio and privacy fence. Additional features include flex space, rain gutters, sprinklers, and a two-car garage. Just off US-175, the community puts downtown Dallas roughly 33 miles—or about a 35-minute drive—away, giving you small-town value with big-city access. Beyond your doorstep, residents enjoy Kaufman’s revitalized historic square lined with boutiques, cafés, and year-round festivals, while 232-acre Kaufman City Lake Park invites fishing, boating, and hiking only minutes from home. Children attend Kaufman ISD schools, and county growth plus planned highway improvements promise strong upside for early buyers seeking affordable new homes near Dallas.