3
2
1500
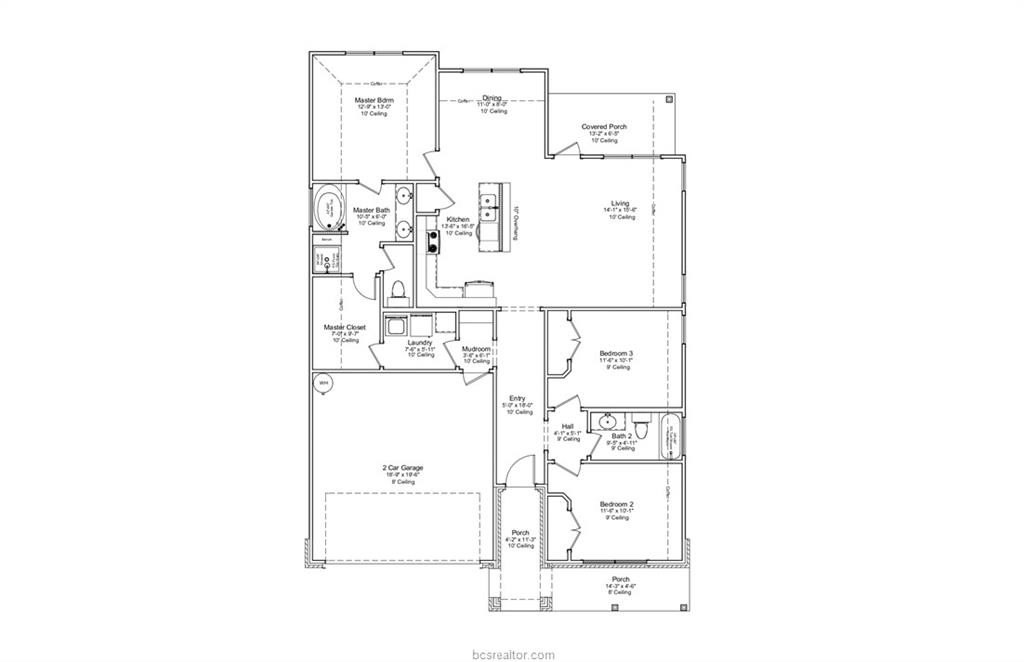
Property Description: BUILDER INCENTIVES AVAILABLE - for closing costs, rate buydowns or upgrades. Open concept 3 bedroom 2 bathroom plan is just what you are looking for. The exterior features a brick wainscot, cedar corbels, 2 car garage, fully sodded yard, and an irrigation system! Inside you will enjoy the luxury vinyl plank flooring throughout the main areas. The kitchen features quartz countertops, stainless steel appliances, custom site-built cabinetry and more! The living room is oversized and has tons of natural light. The primary bedroom features large windows, double vanity in the bathroom, a super shower with tile walls, tile flooring in the shower, and a semi-frameless glass enclosure. Also in the primary bathroom is a private toilet room and an extra linen closet. If storage is a priority, look no further. This plan has great storage in the closets AND extra storage in the garage. Towards the front of the house are two extra bedrooms and another bathroom. Head outside on your patio and enjoy a Texas sunset! Call today for more information regarding selections, other available lots and floor plans!