4
3
2651
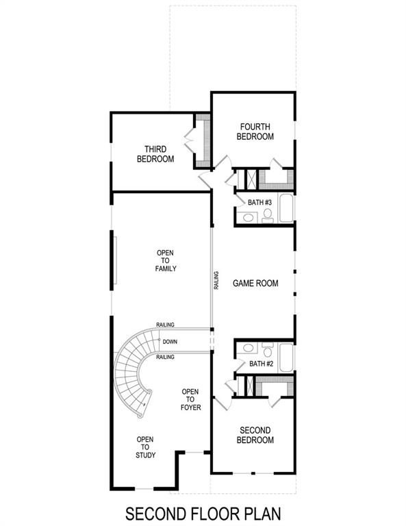
Property Description: MLS# 21079046 - Built by First Texas Homes - Nov 2025 completion! ~ Discover this stunning two-story home in Trails at Cottonwood Creek, Rowlett, TX, offering 4 bedrooms, 3.5 bathrooms, and 2,651 sq ft of flexible living space. Enjoy a dramatic curved staircase, an inviting foyer with an 18-foot ceiling, and a family room featuring a floor-to-ceiling fireplace and double-stacked windows for abundant natural light. The chef’s kitchen boasts an oversized island, 42 custom Shaker cabinets, Maestro Quartz countertops, and a designer backsplash. The private downstairs master suite features a spa-like bath, while upstairs includes a spacious game room, three large bedrooms, and two full baths. A two-car garage and scenic location across from a tree line and walking trail complete this exceptional home. Don’t miss your chance