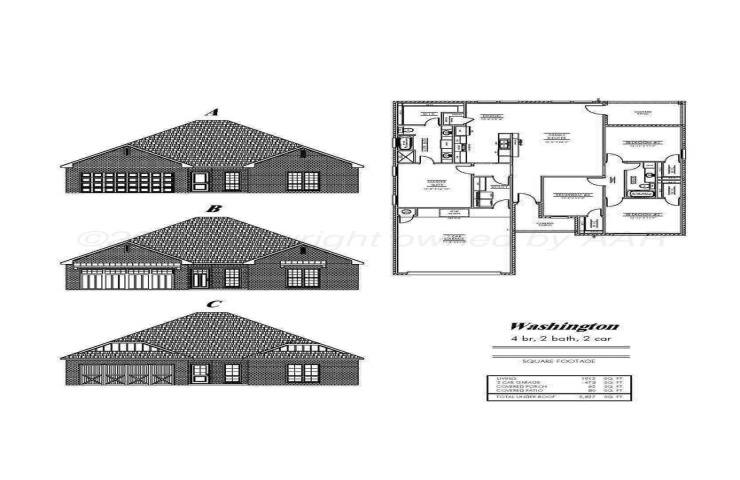
Property Description: MLS# 25-8605 - Built by Bluehaven Homes - November Completion! ~ Discover the exceptional opportunity to own a brand-new home in the sought-after Heritage Hills subdivision. This spacious residence features 4 bedrooms, including a luxurious isolated primary suite, and 2 full bathrooms, perfect for modern living. The intelligently designed layout includes inviting living areas, a dining room adjacent to the kitchen, a convenient pantry, and a utility room, ensuring practicality and comfort. Built with durable brick and a Class 3 composition roof, this home sits on a sturdy slab foundation and is powered by an efficient electric heat pump for year-round comfort. This home also offers a 2-car garage to accommodate your needs. Don't miss the chance to make this your dream home!