3
2
1813
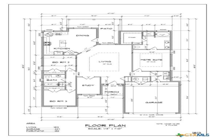
Property Description: BRAND NEW build by Lagan Construction, Inc on Platinum Dr in the coveted Heritage Oaks community! Estimated to be complete FEBRUARY 2026! Enjoy a gorgeous lot at the very back west corner of the subdivision, backing up to Trimmier Creek. You get a little extra privacy back here with no side or back neighbors! This home boasts 3 beds, 2 baths plus a study. Tile flooring in main areas and carpets in the bedrooms. Granite countertops, custom cabinets, luxury archways in main areas and so much more. The primary suite includes a large walk-in closet, separate shower and soaking tub plus a double vanity. Yard will come with full irrigation system and sod in front and back. Snag a GREAT SPOT for your family and start the year in a gorgeous new build! Buyer and buyer's agent to verify all details. Information deemed reliable but not guaranteed.