4
2
1543
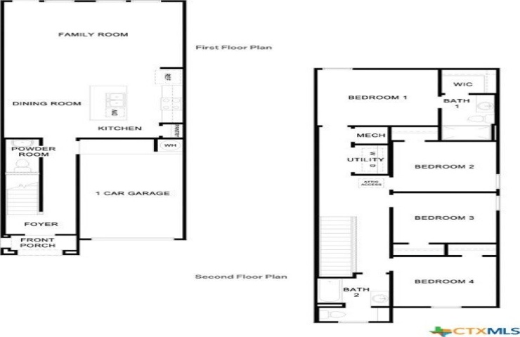
Property Description: MOVE IN READY! The Altaria floorplan is available in Bollinger, one of our communities in Maxwell, Texas. This two-story home has 4 bedrooms, 2.5 bathrooms and a 1 car garage across 1,543 square feet of living space. Our homes in Bollinger feature our modern farmhouse exterior and the Altaria floorplan is available in 2 exterior options. As you enter the home from the covered front porch, you’ll pass through the foyer and hallway to the large open living space. The kitchen faces out to the dining room and family room, allowing for conversations to flow easily across the space as you make dinner and unwind from your day. The kitchen features laminate countertops with 50/50 stainless steel drop-in bowl, 4” laminate backsplash, pantry closet, 36” upper cabinets and stainless-steel appliances, including a gas range. The powder room is off the front hallway to complete the downstairs space. Moving upstairs, you’ll find the 4 bedrooms and 2 full bathrooms. The primary bedroom is located at the rear of the second floor and includes an attached bathroom. Enjoy the walk-in shower, laminate countertop, and a walk-in closet inside the primary bathroom. The secondary bedrooms include closets with shelving and the hall bathroom includes a shower/tub combination. Whether you use these rooms as an office, child’s room or guest room, there is amble space for work, sleep, and play. The Altaria includes vinyl flooring throughout the common areas of the home, and carpet in the bedrooms. All our new homes feature Bermuda sod, an irrigation system in the front and back yard, and a 6’ privacy fence around the back yard. This home features our America’s Smart Home base package, which includes the Video Front Doorbell, Front Door Deadbolt Lock, Home Hub, Thermostat, and Deako® Smart Switches.