4
2
1836
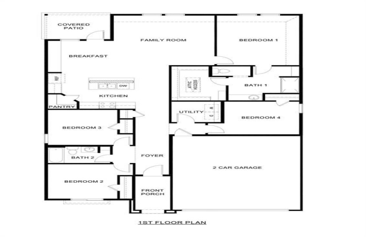
Property Description: New construction by D.R. Horton. Our P40I Icarus Plan is in Windrose located within the rapidly growing city of Pilot Point. This is a 1 story 4 bed 2 bath with an open concept floorplan. Home on a large lot will feature waterproof laminate plank flooring, quartz countertops, and stainless steel appliances. Smart home included.