4
3
2242
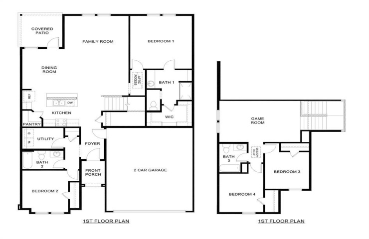
Property Description: New construction by D.R. Horton. Our P40M Plan is in Windrose located within the rapidly growing city of Pilot Point. This is a 2 story 4 bed 3 bath with a game room open concept floorplan. Home on a large lot will feature waterproof laminate plank flooring, quartz countertops, and stainless steel appliances. Smart home included. Please See Showing instructions!!! Plan P40M