4
2
2227
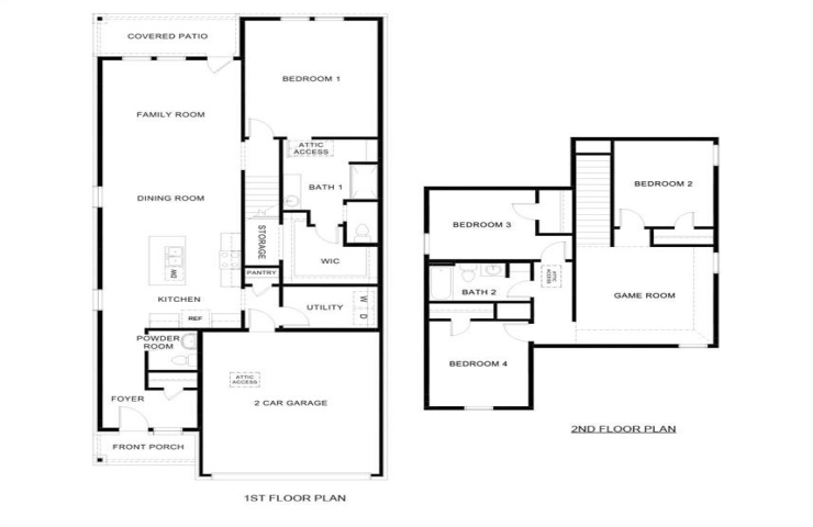
Property Description: New construction by D.R. Horton. Our X30J Jasmine Plan is in Yarbrough Farms located within the rapidly growing city of Pilot Point. This is a 2 story, 4 bed 2.5 bath with game room. its an open concept floorplan. Home features laminate plank flooring, quartz countertops, and stainless steel appliances. Smart home included. Energy efficient Spray Foam Insulation in the attic as well as 2 x 6 exterior walls. Front yard maintenance is included with the HOA.